This website stores cookies on your device. These cookies are used to collect information about how you interact with our website and allow us to remember you. We use this information in order to improve and customize your browsing experience and for analytics and metrics about our visitors both on this website and other media. To find out more about the cookies we use, see our Privacy Policy in the footer of our website.
Accept
Prime Rural Retail Shopping Centre-Income Generating
updated on Jan 13, 2026
POA

WEB REF: 754400

 
Property Summary
  • Price POA
  • LocationDurban, Lindley
  • Property TypeCommercial - Retail
  • Power Type 3 Phase Power
Description

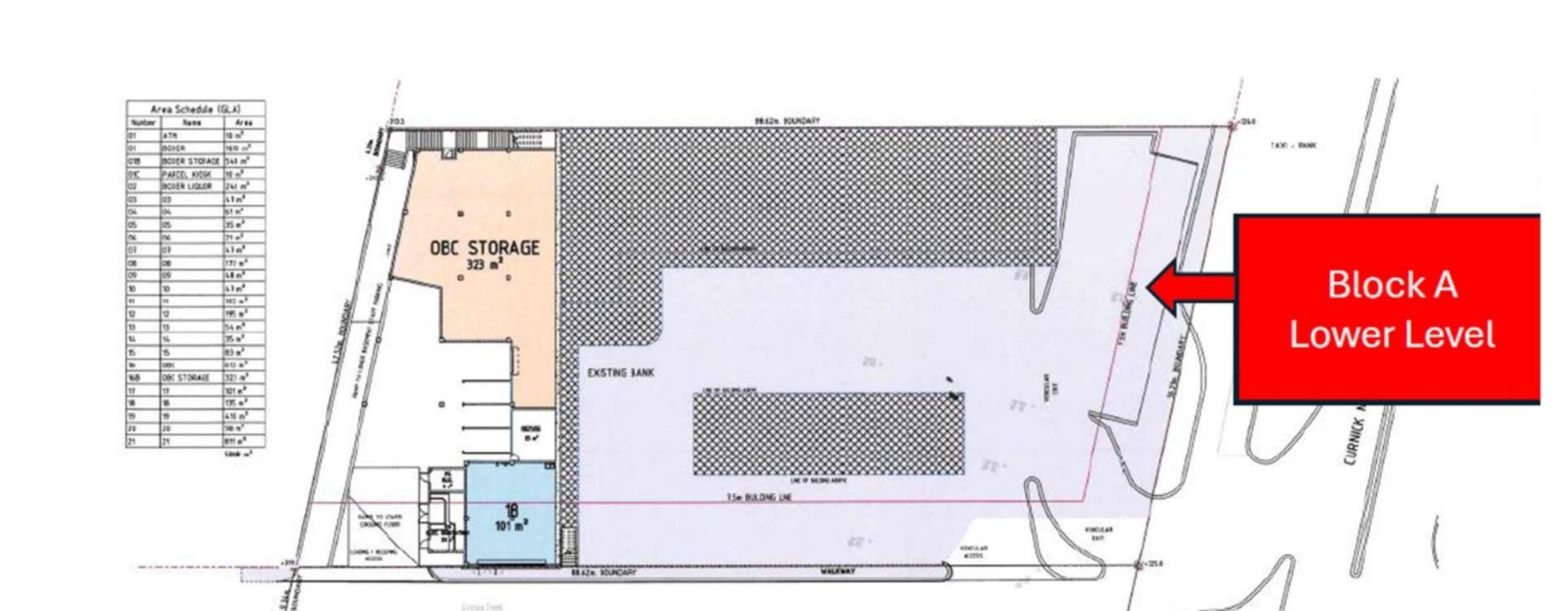
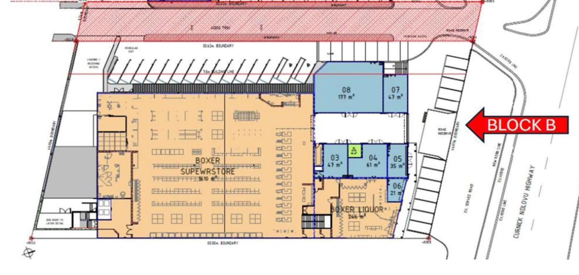
Accepting Offers. DESCRIPTION: The newly built Ikhwani Shopping Centre is located in the Inanda region of KwaZulu-Natal. Situated near major transport routes, it ensures exposure to high footfall and traffic commuters. Designed as a upliftment initiative with local municipality support, this rural convenience retail centre offers formal traders a full-service, secured site for operations drawing it's greater catchment node support from the likes of Phoenix, Verulam and Durban CBD to name a few. Anchored by national brands and franchises, the tenant mix is strong and secured under long term leases, contributing to the capital growth and stable income that investors are looking for. The owners of Ikhwani Shopping centre has committed to ESG by undergoing conscious design to ensure sustainability and low impact consumption via equipping solar power infrastructure, energy-efficient fittings and fixtures, and implementing reduced carbon emission protocols for cost saving initiatives. This presents a perfect opportunity to institutional investors and private investors looking to expand their portfolio with a solid investment opportunity. Key insights detailed below: • GLA: 6,236sqm • Design: Double-level, Open-air, 29 retail units split into 2 blocks • Parking: On grade parking for customers, Taxi rank for public transport • Occupancy: 100% tenanted • Anchor Tenant: Boxer & Boxer Liquor • Tenancy Mix: OBC Butchery, Fast food franchises (i.e Debonairs, Honchos), Banking, Health & Lifestyle services, Clothing, PEP Cell, etc • Upside: Expansion underway with secured tenants - Hungry Lion, Medical service, local traders • Escalations: Avg. 6%-8% per annum • Wale: Over 4 years • Lease terms: Agreements signed in 2023/2024/2025 = 3 – 10 year leases in place Should you be interested in the property, signed NDA required. Financials are available on request. In-house letting services for investors looking for tenants or secured leases. Our Advisory division is on hand to assist portfolio analysis & due diligence. Exclusive commercial finance can be arranged. All viewings are by appointment and subject to vetting requirements. Contact Sachin & Rob for more info or OTP. DETAILS: • Farm name: Piezang Rivier • Farm no: 805 (Portion 179 & 225) • Farm Extent: Portion 179 (4055m²) & Portion 225 ( 4865m²) DISCLAIMER: The information supplied in this advert does not constitute a warranty of any kind or nature by the Sellers of the property or by the Brokers. Buyers must conduct their own investigations prior to purchasing.

      Property Address

      Lindley, Durban, KwaZulu Natal

      Contact Agent(s)

      eMail Agent(s)